3527 E Warm Springs Ave Boise, ID 83716
Directions
E Parkcenter, N Warm Springs, W Warm Springs, S Via Privada, W Eternal
Price: $889,900
Beds: 3
Baths: 2
Garages: 3
Type: Single Family Residence
Area: Boise NE - 0200
Land Size: Sm Lot 5999 SF, Irrigation Available, Sidewalks, A
SqFt: 2621
Age: Under Construction
Acres: 0.079
Garage Type: true
Subdivision: Barber Vista
Year Built: 2025
Construction: Frame, Stone, HardiPlank Type, Wood Siding
Lot Size: 76x45 x 76x45
Includes
Fireplace: One, Gas
Air Conditioned: true
Water: City Service
Heating: Forced Air, Natural Gas
Schools
School District: Boise School District #1
Sr High School: Timberline
Jr High School: East Jr
Grade School: Dallas Harris
Contact for more details:
Description
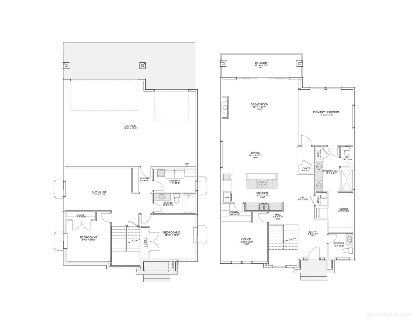
The Preston by Biltmore Company LLC, is a stunning new floorplan located in Barber Vista. This 3-bed, 2.5-bath gem boasts breathtaking views, a lower-level bonus room, and a main-floor office. Soaring vaulted ceilings create a bright, airy ambiance, while a large slider door opens to a balcony with views of the Barber Valley. The primary suite features an ensuite with dual vanities, a tiled shower, and a generous walk-in closet with its own stackable W/D hookup space. Ideally located just minutes from all the outdoor activities Boise has to offer, including hiking, biking, and recreation along the Boise Greenbelt. A true blend of luxury, location, and ease of living.
Legal Description:
LOT 05 BLK 01 BARBER HILL VISTAS SUB
LOT 05 BLK 01 BARBER HILL VISTAS SUB
| Listing info for this property courtesy of Silvercreek Realty Group Information deemed reliable but not guaranteed. Buyer to verify all information. All properties are subject to prior sale, change or withdrawal. Neither listing broker(s), shall be responsible for any typographical errors, misinformation, misprints and shall be held totally harmless. |































